


































$925,000
MLS #:
2313183
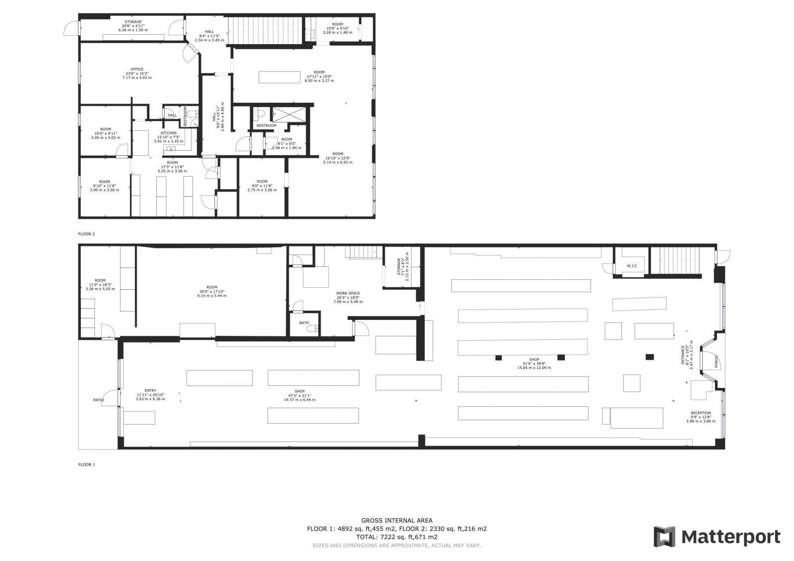
Sq. Ft.:
7222
Lot Size:
0.12 Acres
Yr. Built:
1914
Type:
Commercial
Commercial Building - Restaurant, Retail, Historic, Banking/Financial, Brewery, Special Purpose, Car Wash, Commercial Pad, Motel/Hotel/Inn, Office/Business, Office/Medical
Area:
Bishop East
Subdivision:
Bishop East
Address:
162 N Main
Bishop, CA 93514
Prime Main Street Historic Building with Predevelopment Work
162 N. Main Street presents a rare opportunity to acquire a historic commercial building in the heart of Bishop's Main Street corridor. The approximately 7,000 SF property is located directly on Highway 395, offering excellent visibility and consistent year-round traffic. The building has been fully interior-demolished, with significant predevelopment work completed including environmental inspection and abatement, structural engineering evaluation, soil study, and as-built drawings. The existing two-story structure provides valuable vertical density, with recently updated zoning allowing potential expansion to a third story. Completed hotel and restaurant plans are available. Flexible zoning supports a variety of commercial or mixed-use options including retail, office, hospitality, or residential. Located approximately 45 minutes from Mammoth Mountain Ski Area, this property offers a unique opportunity to reposition a prominent downtown asset.
Interior Features:
Commercial Pad
Cooling: Evap Cooler
Vaulted Ceilings
Exterior Features:
Construction: Stucco
Roof: Flat
View of Mountains
Other Features:
Banking/Financial
Brewery
Motel/Hotel/Inn
Office/Business
Office/Medical
Restaurant
Retail
Special Purpose
Utilities:
Sewer: Hooked-up
Water Source: City/Municipal
Listing offered by:
Jake Rasmuson - License# 01401464 with Bishop Real Estate Rasmuson & Associates - (760) 873-4264.
Map of Location:
Data Source:
Listing data provided courtesy of: Inyo Multiple Listing Service (Data last refreshed: 03/05/26 7:05pm)
- 0
Notice & Disclaimer: Information is provided exclusively for personal, non-commercial use, and may not be used for any purpose other than to identify prospective properties consumers may be interested in renting or purchasing. All information (including measurements) is provided as a courtesy estimate only and is not guaranteed to be accurate. Information should not be relied upon without independent verification.
Notice & Disclaimer: Information is provided exclusively for personal, non-commercial use, and may not be used for any purpose other than to identify prospective properties consumers may be interested in renting or purchasing. All information (including measurements) is provided as a courtesy estimate only and is not guaranteed to be accurate. Information should not be relied upon without independent verification.
More Information
Please reach out for any questions or inquries.
We are happy to help!
We are happy to help!
Phone:
760-260-8500
Email:
RolandMcClean@gmail.com
760-260-8500
Email:
RolandMcClean@gmail.com
Mortgage Calculator
%
%
Down Payment: $
Mo. Payment: $
Calculations are estimated and do not include taxes and insurance. Contact your agent or mortgage lender for additional loan programs and options.
Send To Friend

